Dòng sản phẩm thang cuốn nhập khẩu của Công ty thang máy TKT được thiết kế tuân theo các tiêu chuẩn Quốc tế. Ổn định, tiếng ồn nhỏ; bền bỉ và rất thuận tiện, dễ dàng trong việc bảo trì và sửa chữa. Cấu trúc thông minh, các bậc thang được thiết kế tinh tế, tay vịn có cấu trúc hiện đại. An toàn, tiện nghi và sự hấp dẫn sẽ khiến cho hành khách sử dụng thang có những giây phút thoải mái.
Dòng thang cuốn của Công ty thang máy TKT đáp ứng được sự mong đợi của khách hàng. Sử dụng rộng rãi tại các trung tâm mua sắm, siên bay, v.v… Thang cuốn Hitachi thực sự tôn thêm vẻ đẹp và sự hiện đại cho các tòa nhà.

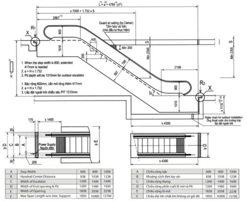
BẢN VẼ THANG CUỐN








